Click on a photo to enlarge, or
enjoy a virtual tour.
Virtual Tour
Build this home on your land
Click
h
ere
for information.
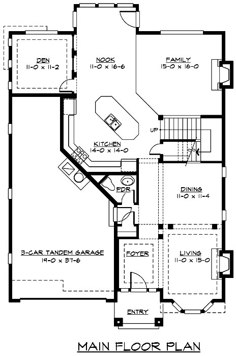
Main Floor
Upper Floor
Cormorant Passage
4 Bedrooms
2.5 Bathrooms
3 car garage
Bonus
Den
3,291 Square Feet